Quels documents fournir pour obtenir un Certificat d’Urbanisme Opérationnel ?

Plusieurs documents et informations doivent être communiqués à votre mairie si vous souhaitez obtenir un Certificat d’Urbanisme Opérationnel. Origami Conseils vous donne ici quelques informations utiles.

Pour obtenir un Certificicat d’Urbanisme Opérationnel, il faudra communiquer à sa mairie : 

  • Le formulaire cerfa n°13410 -11 complété
  • La pièce CU1 qui correspond à un plan de situation et qui permet de localiser le terrain à l’échelle de votre commune.
  • La pièce CU2 qui correspond à une notice descriptive succincte décrivant l’opération projetée.
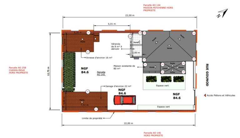
  • La pièce CU3 qui correspond à un plan du terrain lorsqu’il existe des constructions.

Seules les informations suivantes doivent être renseignées dans le CERFA : 

  1. Cocher la case Certificat d’Urbanisme d’Opérationnel (Page 1)
  2. Renseigner l’identité du ou des Demandeurs (Page 1)
  3. Renseigner l’adresse et les coordonnées du ou des Demandeurs (Page 2)
  4. Renseigner l’adresse du terrain et la référence cadastrale (Page 2)
  5. Signer le Cerfa (Page 3)
  6. Cocher la case CU1, CU2 et CU3 le cas échéant (Page 8)

Pour identifier la parcelle cadastrale, vous pouvez utiliser les outils en ligne suivants : 

 

Pour permettre l’instruction de votre dossier, un plan de situation (échelle comprise entre 1/2000 et 1/5000) doit être fourni à la mairie. 

Ce plan de situation, qui permet de localiser votre terrain, peut être réalisé plus ou moins facilement à l’aide des outils suivants :

Il faudra également fournir lorsque des constructions existent déjà sur le terrain, un plan du terrain indiquant l’emplacement des bâtiments existants.

La notice descriptive doit présenter succinctement le projet envisagé et notamment : 

  • identifier la nature des constructions ou aménagements projetés.
  • localiser les constructions ou aménagements projetés.
  • identifier la destination ou sous destination des constructions ou aménagements projetés.
  • identifier la destination ou sous destination des bâtiments existants ou à démolir. 

Deux possibilités s’offrent à vous : 

  1. Déposer directement votre dossier en ligne (1 exemplaire) par voie dématérialisée. C’est moderne, rapide et facile d’accès.  

  2. Déposer votre dossier (en deux exemplaires) au format papier soit par recommandé avec avis de réception ou remise en mains propres

 

Le délai d’instruction, pour une demande de Certificat d’Urbanisme opérationnel est de 2 mois maximum.

A l’issu de délai d’instruction, la commune concernée vous transmet le Certificat. Il prend la forme d’un document d’information.

Le Certificat d’Urbanisme Opérationnel a une durée de validité de 18 mois à compter de sa délivrance.
Il garantit et cristallise les informations transmises sur toute cette durée. Il vous permet de savoir si le projet tel que vous l’imaginez, est réalisable ou non. 

L’autorisation d’urbanisme que vous déposerez pendant cette période de 18 mois sera instruite selon les règles en vigueur à la délivrance du certificat et le taux des taxes ne subira pas d’augmentation.

Oui, vous pouvez demander une prolongation de votre CU, au moins 2 mois avant sa fin de validité.  Elle peut être accordée pour une période d’un an  si les règles d’urbanisme, les servitudes d’utilité publique et les taxes applicables au terrain n’ont pas changé.